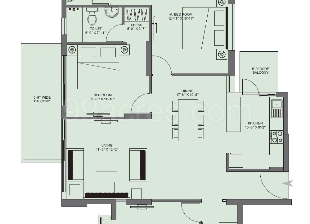
Terra 3bhk 1811 Sqft rent 42k
Car Parking 24X7 Security CCTV Camera Fire Fighting Gym Lift…
For Rent
INR40,000
Owning a home is a keystone of wealth… both financial affluence and emotional security.